Sprzedam dom Legionowo, ul. Grudzie

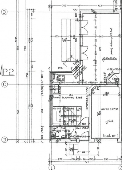
Do sprzedaży dom jednorodzinny o powierzchni całkowitej 168 m2 położony na działce 280 m2, w Legionowie przy ul. Grudzie. Budynek w zabudowie szeregowej (1 z 3 segmentów) - segment skrajny. Budynek wykończony z zewnątrz (dach, elewacja, okna, drzwi, brama garażowa), do wykończenia w środku - stan surowy zamknięty. Dojazd do działki możliwy z dwóch stron - od ulicy Grudzie i od ul. Górnej.

Pomieszczenia:

Parter: Pokój dzienny- 26,3m2, Aneks kuchenny: 8,4m2, WC - 1,5 m2, Garaż - 15 m2, Korytarz - 4,4m2, Sień - 2,8m2.

Piętro: Sypialnia1: 23,1m2, Sypialnia2: 13,4m2, Sypialnia3: 10m2, Łazienka: 6,5m2, Kotłownia/Łazienka: 3,4m2, Korytarz - 5,8m2.

Duże poddasze z możliwością adaptacji na cele mieszkalne.

Działka ogrodzona  (słupy klinkierowe, kute przęsła). Brama przesuwna.

Dostępne wszystkie media: prąd, woda, gaz, telefon, kanalizacja.

Bardzo atrakcyjna cena (potrzeba szybkiej sprzedaży) - 260 000 PLN  (cena ostateczna).

Oferta bezpośrednia. W celu obejrzenia proszę o kontakt tel. pod nr 506-124-587.

Lokalizacja mazowieckie, Legionowo
tel. 506124587

To Twoje ogłoszenie?

Zaloguj się, aby zarządzać swoimi ofertami.

Zaloguj się

Skontaktuj się z ogłoszeniodawcą