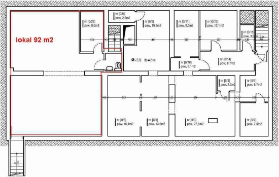
Lokal handlowo-usługowy przyziemie 92 m2 wymaję


Lokal handlowo-usługowy usytułowany w przyziemiu bardzo łatwy w adaptacji idealny na punkty gastronomiczne, handlowe, usługowe itp. Usytuowany w przyziemiu nowo wyremontowanej galerii usługowo handlowej z dużym parkingiem. Obiekt znajduje się w ścisłym centrum Bytomia na strategicznym skrzyżowaniu drogi krajowej na Katowice. W pobliżu budynku znajdują się dwa przystanki autobusowo tramwajowe oraz postój Taxi i sąsiaduje z dużym osiedlem mieszkaniowym.

Zapraszamy do kontaktu:

606417233

budynek.bytom.pl

Lokalizacja śląskie, Bytom
Budynek Bytom Telefon: 606417233 Email: (skorzystaj z formularza) www: budynek.bytom.pl

To Twoje ogłoszenie?

Zaloguj się, aby zarządzać swoimi ofertami.

Zaloguj się

Skontaktuj się z ogłoszeniodawcą